Vragen? Bel 0517-856420
Woning verkopen?   Bel 0517-856420
Woning foto
Beschikbaar

Barend Visserstraat 3 in Harlingen

Specificaties

Aantal kamers : 5 kamers (4 slaapkamers)
Woonoppervlakte : 117 m²
Perceeloppervlakte : 105 m²
Bouwjaar : 1980
Energielabel : B
Prijs € 279.000 k.k.

Woningomschrijving

Ruime tussenwoning met 4 slaapkamers op loopafstand van het centrum!

Op slechts een steenworp afstand van het centrum ligt deze nette en goed onderhouden tussenwoning. De woning beschikt over vier slaapkamers (met de mogelijkheid voor een vijfde), een nieuwe keuken uit 2024, een zonnige achtertuin en heeft energielabel B. Een ideale gezinswoning op een centrale en gewilde locatie!

Indeling van de woning
Begane grond:

Entree met vernieuwd toilet, meterkast en trapopgang naar de eerste verdieping. De tuingerichte woonkamer is heerlijk licht dankzij de schuifpui naar de zonnige achtertuin op het zuidoosten. De moderne keuken (2024) bevindt zich aan de voorzijde van de woning en is uitgerust met een gaskookplaat, combimagnetron en inbouwkoelkast.

Eerste verdieping:
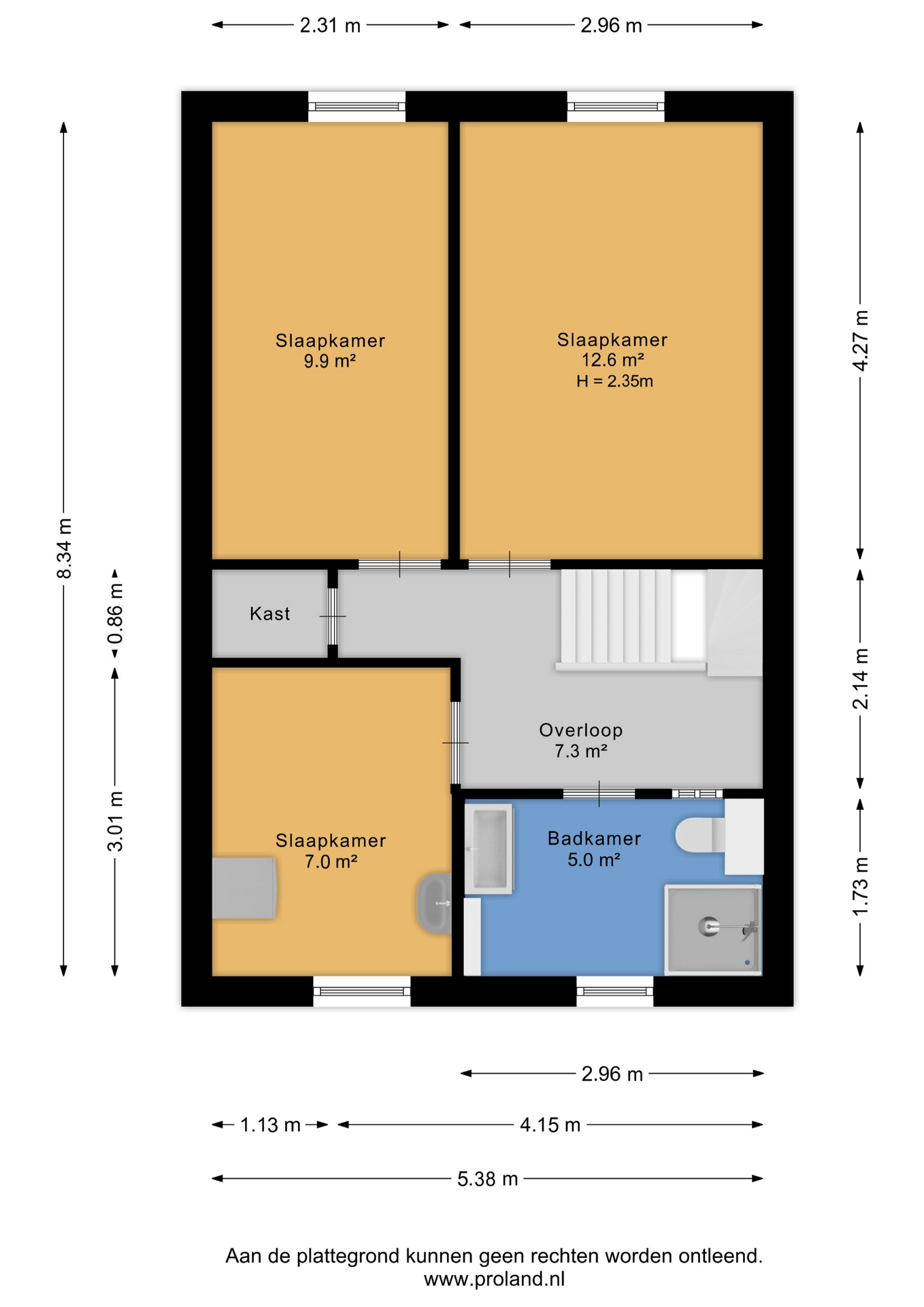
Op de eerste verdieping bevinden zich drie ruime slaapkamers en de badkamer met inloopdouche, tweede toilet en wastafel.

Tweede verdieping:
Hier tref je de vierde slaapkamer aan. Deze verdieping biedt bovendien de mogelijkheid om een vijfde slaapkamer te realiseren. Ook bevinden zich hier de witgoedaansluiting en de CV-ketel (Atag, 2015).

Tuin:
De verzorgde achtertuin is gelegen op het zuidoosten, voorzien van een achterom en een vrijstaande houten berging. Ideaal voor het stallen van fietsen of extra opslagruimte.

Bijzonderheden:
* Woonoppervlakte 117m²
* Perceeloppervlakte 105m²
* Energielabel B
* Nieuwe keuken (2024)
* Vier slaapkamers (vijf mogelijk)
* Zonnige tuin op het zuidoosten
* Vrijstaande houten berging
* Gelegen op loopafstand van het centrum