Vragen? Bel 0517-856420
Woning verkopen?   Bel 0517-856420
Woning foto
Verkocht onder voorbehoud

Boontjes 4 in Harlingen

Specificaties

Aantal kamers : 5 kamers (4 slaapkamers)
Woonoppervlakte : 122 m²
Perceeloppervlakte : 476 m²
Bouwjaar : 2016
Energielabel : A
Prijs € 395.000 K.K.

Woningomschrijving

Prachtige hoekwoning in de gewilde wijk Ludinga!

Gelegen op een royaal perceel van 476m² en grenzend aan het weiland. Deze uitstekend onderhouden woning is volledig voorzien van kunststof kozijnen, beschikt over vier slaapkamers, 10 zonnepanelen, een energielabel A en een royale serre met glazen schuifwanden. Een ideale plek voor wie comfort, ruimte en een landelijke ligging wil combineren.

Indeling van de woning
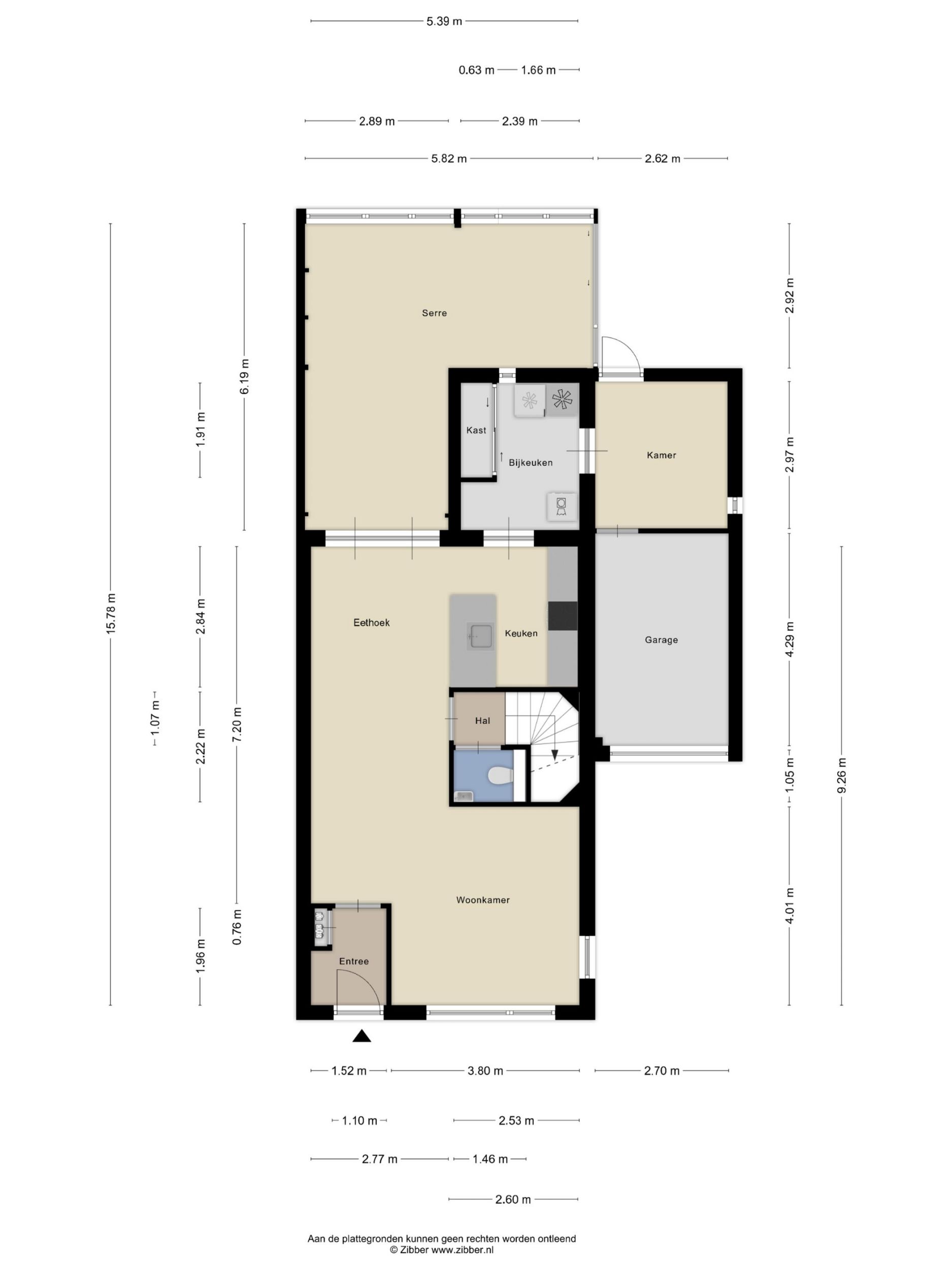
Begane grond

Entree met meterkast. Lichte woonkamer met veel natuurlijke lichtinval en vrij uitzicht over de aangrenzende weilanden. De moderne keuken is voorzien van een spoeleiland, inductiekookplaat en combimagnetron. Aansluitend bevindt zich de bijkeuken met witgoedaansluiting en inpandige doorgang naar de garage/berging. Aan de achterzijde van de woning bevindt zich een royale serre met glazen schuifwanden, perfect om het hele jaar door te genieten van het buitenleven. In de zomermaanden open je eenvoudig alle wanden voor een naadloze overgang naar de tuin.

Eerste verdieping
Op de eerste verdieping bevinden zich drie slaapkamers en de badkamer. De badkamer is voorzien van een inloopdouche, tweede toilet en wastafel.

Tweede verdieping
Op de tweede verdieping bevindt zich de vierde slaapkamer.

Bijzonderheden:
- Woonoppervlakte: 122m²
- Perceeloppervlakte: 476 m²
- Gelegen aan het weiland
- Volledig voorzien van kunststof
- Royale serre met glazen schuifwanden
- 10 zonnepanelen
- Energielabel A
- Vier slaapkamers
- Inpandige garage/berging