Vragen? Bel 0517-856420
Woning verkopen?   Bel 0517-856420
Woning foto
Verkocht

Bosboom Toussaintstraat 36 in Harlingen

Specificaties

Aantal kamers : 6 kamers (5 slaapkamers)
Woonoppervlakte : 114 m²
Perceeloppervlakte : 106 m²
Bouwjaar : 1981
Energielabel : C
Prijs € 285.000 k.k.

Woningomschrijving

Ruime tussenwoning met 5 slaapkamers nabij het centrum!

Op slechts een steenworp afstand van het centrum ligt deze zeer nette tussenwoning. De woning beschikt over vijf slaapkamers, een nette open keuken, een vernieuwde badkamer, een fijne achtertuin en heeft energielabel C. Een ideale gezinswoning op een centrale locatie!

Indeling van de woning
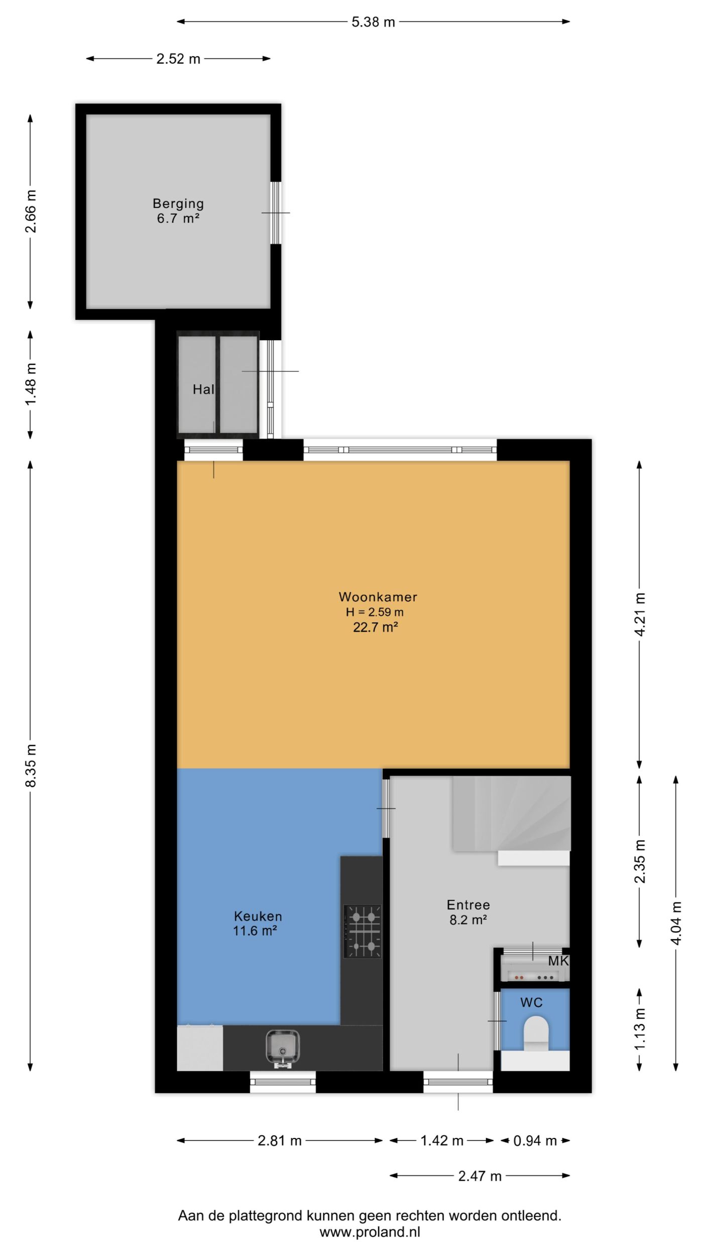
Begane grond

Entree met toilet, meterkast en trapopgang naar de eerste verdieping. De tuingerichte woonkamer is licht en sfeervol en staat in open verbinding met de hoekkeuken die is uitgerust met een vaatwasser, Quooker, inbouwkoelkast, gaskookplaat en combimagnetron. De begane grond is fraai afgewerkt met een moderne visgraatvloer en strak gestucte wanden.

Eerste verdieping
Hier vind je drie slaapkamers en een recent geplaatste, moderne badkamer. De badkamer is voorzien van een ligbad, inloopdouche, tweede toilet, wastafel en elektrische vloerverwarming. Alles wat je nodig hebt voor een comfortabele start van je dag.

Tweede verdieping
Op de tweede verdieping bevinden zich nog eens twee slaapkamers, wat deze woning ideaal maakt voor grotere gezinnen of thuiswerkers. Daarnaast vind je hier de CV-ketel (Intergas, 2011) en de aansluitingen voor witgoed.

Bijzonderheden:
- Woonoppervlakte: 114m²
- Perceeloppervlakte: 106m² (eigen grond)
- Vijf volwaardige slaapkamers
- Recent vernieuwde badkamer met vloerverwarming
- Energielabel C
- Nabij het centrum, scholen en voorzieningen
- Fraai afgewerkt met o.a. visgraatvloer en gestucte wanden

Op zoek naar een ruime woning op een toplocatie met maar liefst vijf slaapkamers?