Vragen? Bel 0517-856420
Woning verkopen?   Bel 0517-856420
Woning foto
Verkocht onder voorbehoud

Botterhof 52 in Harlingen

Specificaties

Aantal kamers : 5 kamers (3 slaapkamers)
Woonoppervlakte : 102 m²
Perceeloppervlakte : 279 m²
Bouwjaar : 1979
Energielabel : A
Prijs € 349.500 k.k.

Woningomschrijving

Prachtige twee-onder-een-kapwoning met vrij uitzicht over de weilanden!

Deze goed onderhouden woning is volledig voorzien van kunststof kozijnen en gevelbekleding, wat zorgt voor een onderhoudsvriendelijk geheel. Met drie slaapkamers (en de mogelijkheid tot een vierde op zolder), 12 zonnepanelen, airco’s voor zowel koelen als verwarmen én energielabel A, is deze woning helemaal van deze tijd. De zonnige achtertuin ligt op het zuiden en grenst direct aan het weiland — een perfecte plek om in alle rust te genieten van het buitenleven.

Indeling van de woning
Begane grond

Entree met meterkast. Vanuit de hal loop je door naar het leefgedeelte. Aan de rechterzijde vind je de open hoekkeuken, uitgerust met een gasfornuis, combimagnetron, vaatwasser en koelkast. Aansluitend de ruime, tuingerichte woonkamer met veel lichtinval. Via de inpandige doorgang bereik je de bijkeuken/berging, waar voldoende ruimte is voor een extra koelkast of vriezer én extra opbergruimte.

Eerste verdieping
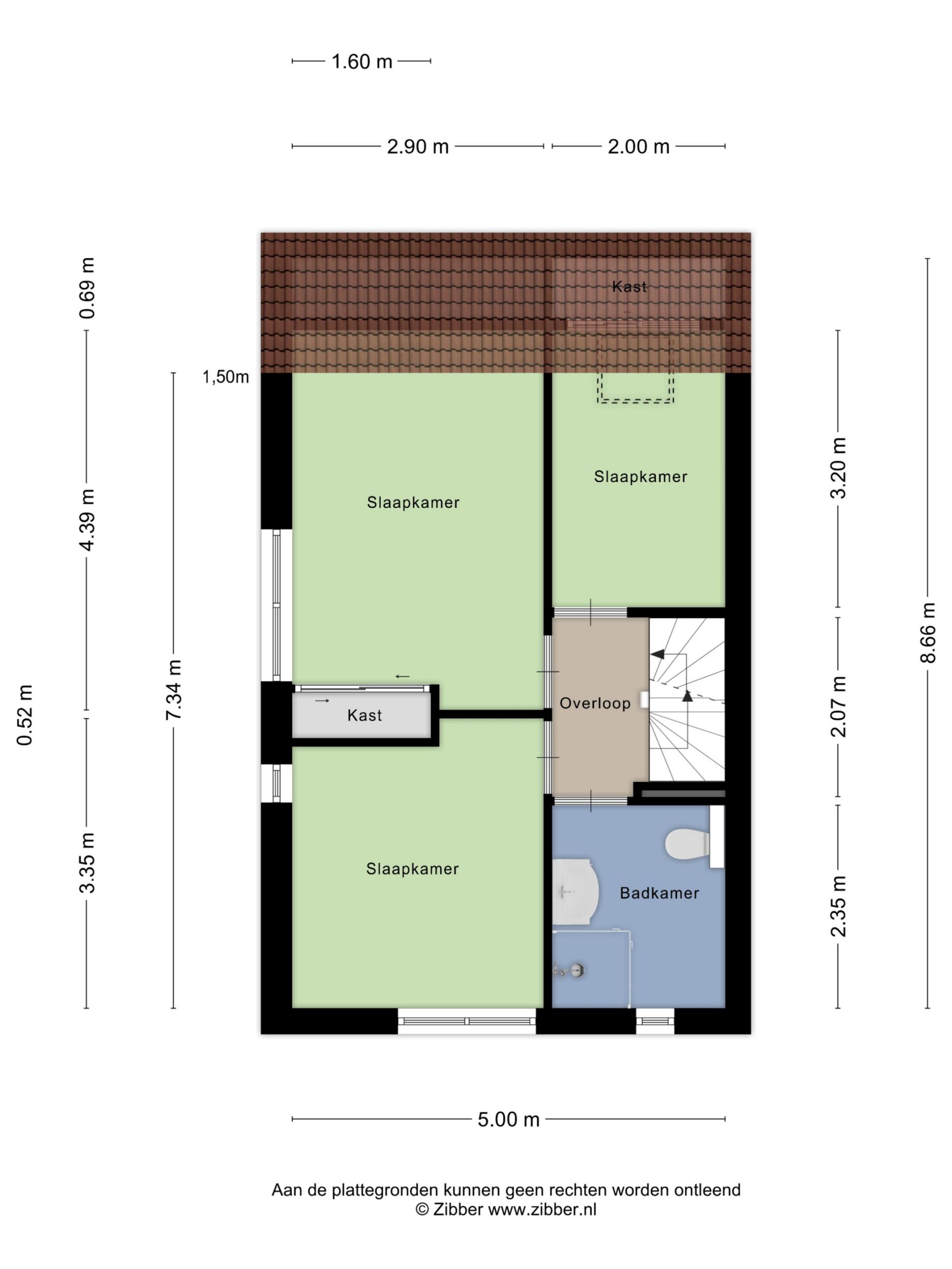
Op de eerste verdieping bevinden zich drie slaapkamers en een royale badkamer voorzien van een inloopdouche, tweede toilet en wastafel.

Tweede verdieping
De zolderverdieping biedt de mogelijkheid om een vierde slaapkamer te realiseren, maar is uiteraard ook praktisch als bergzolder.

Tuin
Een heerlijke, zonnige achtertuin op het zuiden, grenzend aan de weilanden. Hier geniet je volop van rust, ruimte en vrij uitzicht.

Bijzonderheden:
- Energielabel A
- 12 zonnepanelen
- Airco’s voor zowel koelen als verwarmen
- Mogelijkheid tot vierde slaapkamer op zolder
- Inpandige bijkeuken/berging
- Zonnige tuin op het zuiden met uitzicht over de weilanden
- Voorzien van kunststof kozijnen
- Waterontharder