Vragen? Bel 0517-856420
Woning verkopen?   Bel 0517-856420
Woning foto
Verkocht onder voorbehoud

Caspar di Roblesstraat 18 in Harlingen

Specificaties

Aantal kamers : 3 kamers (2 slaapkamers)
Woonoppervlakte : 80 m²
Perceeloppervlakte : 103 m²
Bouwjaar : 1902
Energielabel : A
Prijs € 345.000 k.k.

Woningomschrijving

Compleet gerenoveerde woning nabij centrum én strand!

Deze instapklare woning is volledig gemoderniseerd, uitstekend geïsoleerd en beschikt over energielabel A. Met twee slaapkamers, vloerverwarming en een tweede toilet biedt de woning verrassend veel comfort. Bovendien is de woning per direct beschikbaar!

Indeling van de woning
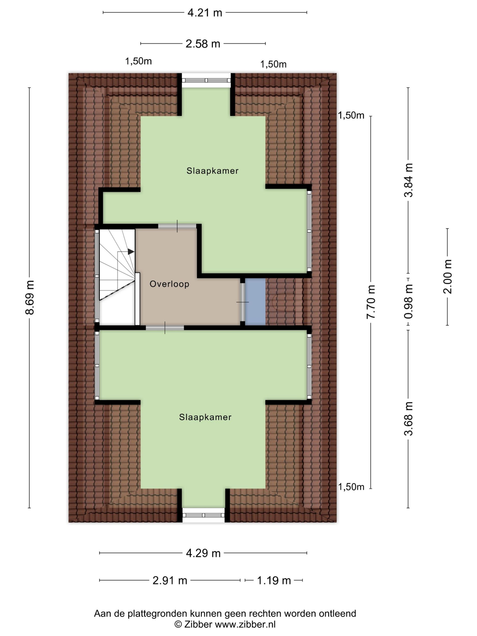
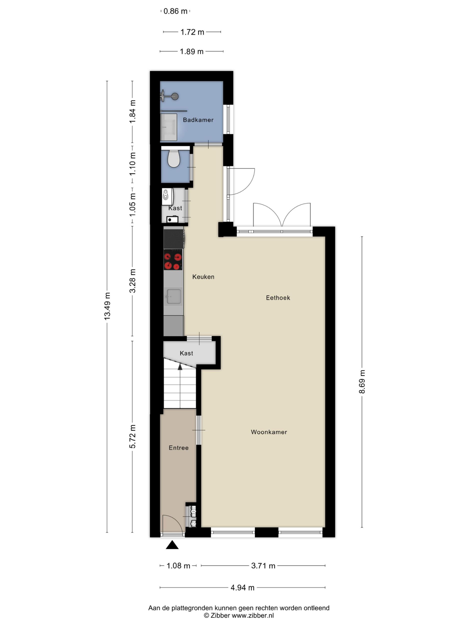
Begane grond:

Entree met meterkast en trapopgang. De lichte woonkamer heeft een open verbinding met de moderne keuken, die is voorzien van een inductiekookplaat, vaatwasser, combi-magnetron en koel-vriescombinatie. Via de openslaande deuren loop je in de zomermaanden zo de heerlijke achtertuin in! Verder bevinden zich op de begane grond een separaat toilet en de badkamer, uitgerust met een inloopdouche en wastafel.

Eerste verdieping:
Op de eerste verdieping vind je twee slaapkamers. Tussen de slaapkamers in bevindt zich het tweede toilet.

Bijzonderheden:
- Volledig gerenoveerd
- Energielabel A
- Twee slaapkamers
- Tweede toilet
- Vloerverwarming
- Per direct beschikbaar
- Nabij centrum en strand
- Schilderwerk 2025