Vragen? Bel 0517-856420
Woning verkopen?   Bel 0517-856420
Woning foto
Onder bod

De Eendracht 2 in Harlingen

Specificaties

Aantal kamers : 4 kamers (3 slaapkamers)
Woonoppervlakte : 103 m²
Perceeloppervlakte : 630 m²
Bouwjaar : 1989
Energielabel : C
Prijs € 415.000 k.k.

Woningomschrijving

Unieke kans in Bynia State!

Op een prachtige locatie in de gewilde en kindvriendelijke wijk Bynia State staat deze vrijstaande woning op een royaal perceel van maar liefst 630 m². De woning beschikt over drie slaapkamers, een ruime garage met oprit, een fraai aangelegde tuin rondom de woning én biedt volop mogelijkheden om te moderniseren of uit te bouwen aan de achterzijde.

Indeling van de woning
Begane grond
Entree met toilet, meterkast en trapopgang naar de eerste verdieping. De lichte woonkamer beschikt over grote raampartijen die zorgen voor veel natuurlijk lichtinval. Aansluitend bevindt zich de open hoekkeuken, met toegang tot de ruime bijkeuken. Via de bijkeuken is er een inpandige doorgang naar de garage – ideaal voor praktisch gebruik of opslag.

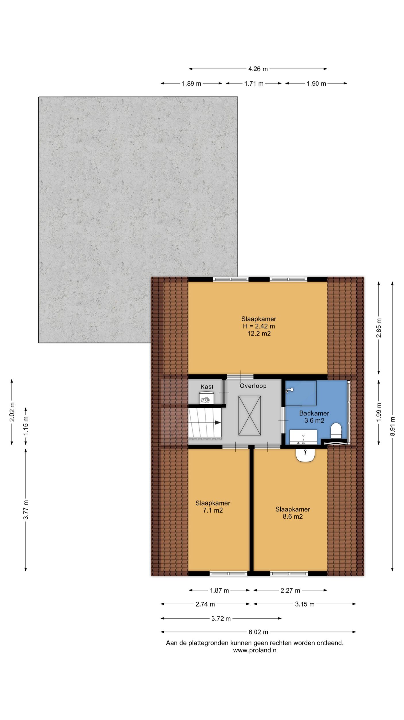
Eerste verdieping
Op de eerste verdieping bevinden zich drie slaapkamers, waarvan twee aan de voorzijde en één royale kamer aan de achterzijde, die zich uitstrekt over de volledige breedte van de woning. De badkamer is centraal gelegen en voorzien van een inloopdouche, wastafel en tweede toilet.

Vliering
Via een vlizotrap is de bergzolder bereikbaar – handig voor extra opslagruimte.

Bijzonderheden
- Vrijstaande woning op een perceel van 630 m²
- Gelegen in rustige en kindvriendelijke woonwijk
- Drie slaapkamers
- Inpandige garage en ruime oprit
- Tuin rondom
- Mogelijkheid tot uitbouw aan de achterzijde
- Energielabel: C

Ben jij op zoek naar ruimte, vrijheid en een woning met potentie op een toplocatie? Dan is dit je kans!