Vragen? Bel 0517-856420
Woning verkopen?   Bel 0517-856420
Woning foto
Onder bod

De Velduil 41 in Harlingen

Specificaties

Aantal kamers : 5 kamers (4 slaapkamers)
Woonoppervlakte : 123 m²
Perceeloppervlakte : 308 m²
Bouwjaar : 1997
Energielabel : B
Prijs € 399.000 K.K.

Woningomschrijving

Prachtige 2-onder-1-kapwoning aan het vaarwater!

Wonen aan het water én direct instapklaar? Deze ruime en goed onderhouden 2-onder-1-kapwoning is gelegen op een unieke locatie en beschikt over vier slaapkamers, kunststof kozijnen, een nieuwe walbeschoeiing (2024), een ruime achtertuin aan het vaarwater én een energielabel B.

Indeling van de woning
Begane grond

Ruime entree met meterkast, toilet en trapopgang naar de eerste verdieping. De lichte woonkamer is van goed formaat en biedt aan de voorzijde prachtig vrij uitzicht tussen de huizen door. De open hoekkeuken is voorzien van diverse inbouwapparatuur zoals een vaatwasser, inductiekookplaat, combi-magnetron en koelkast. Aansluitend bevindt zich de bijkeuken met aansluitingen voor witgoed én toegang tot de inpandige garage.

Eerste verdieping
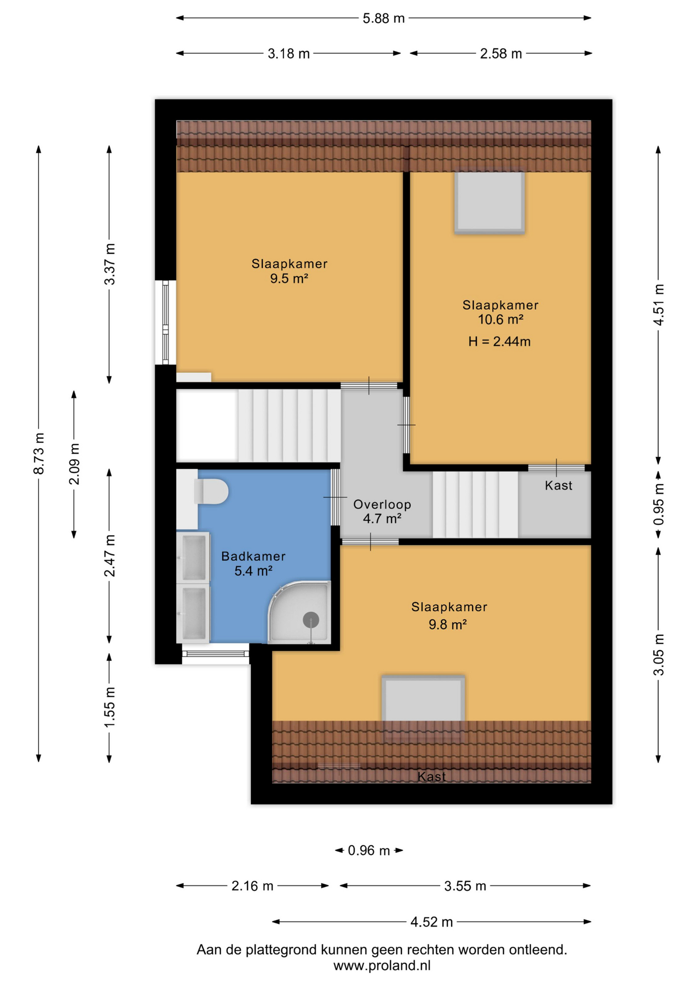
Op de eerste verdieping bevinden zich drie slaapkamers en een nette badkamer, voorzien van een douchecabine, tweede toilet en een dubbele wastafel.

Tweede verdieping
Op de tweede verdieping vind je de vierde slaapkamer – een ideale ruimte als slaap-, werk- of hobbykamer.

Tuin
De fraai aangelegde achtertuin is speels ingedeeld met een combinatie van groen en bestrating. Aan het water is een royaal terras gecreëerd waar je op warme zomeravonden heerlijk kunt genieten van rust aan het water. De nieuwe walbeschoeiing uit 2024 zorgt voor een verzorgde en veilige waterkant.

Bijzonderheden
- Gelegen aan vaarwater
- Energielabel B
- Vier slaapkamers
- Kunststof kozijnen
- Nieuwe walbeschoeiing (2024)
- Inpandige garage
- Ruime bijkeuken

Benieuwd naar deze unieke woonkans aan het water? Neem contact met ons op en plan een bezichtiging in.