Vragen? Bel 0517-856420
Woning verkopen?   Bel 0517-856420
Woning foto
Beschikbaar

F. Domela Nieuwenhuisstraat 34 in Harlingen

Specificaties

Aantal kamers : 4 kamers (3 slaapkamers)
Woonoppervlakte : 106 m²
Perceeloppervlakte : 358 m²
Bouwjaar : 1966
Energielabel : D
Prijs € 359.000 k.k.

Woningomschrijving

Levensloopbestendige bungalow op ruim perceel

Deze gelijkvloerse bungalow is gelegen op een royaal perceel van 358 m² en beschikt over drie slaapkamers, een ruime badkamer, een lichte woonkamer met grote raampartijen en heeft een energielabel D. Een ideale woning voor wie toekomstgericht wil wonen!

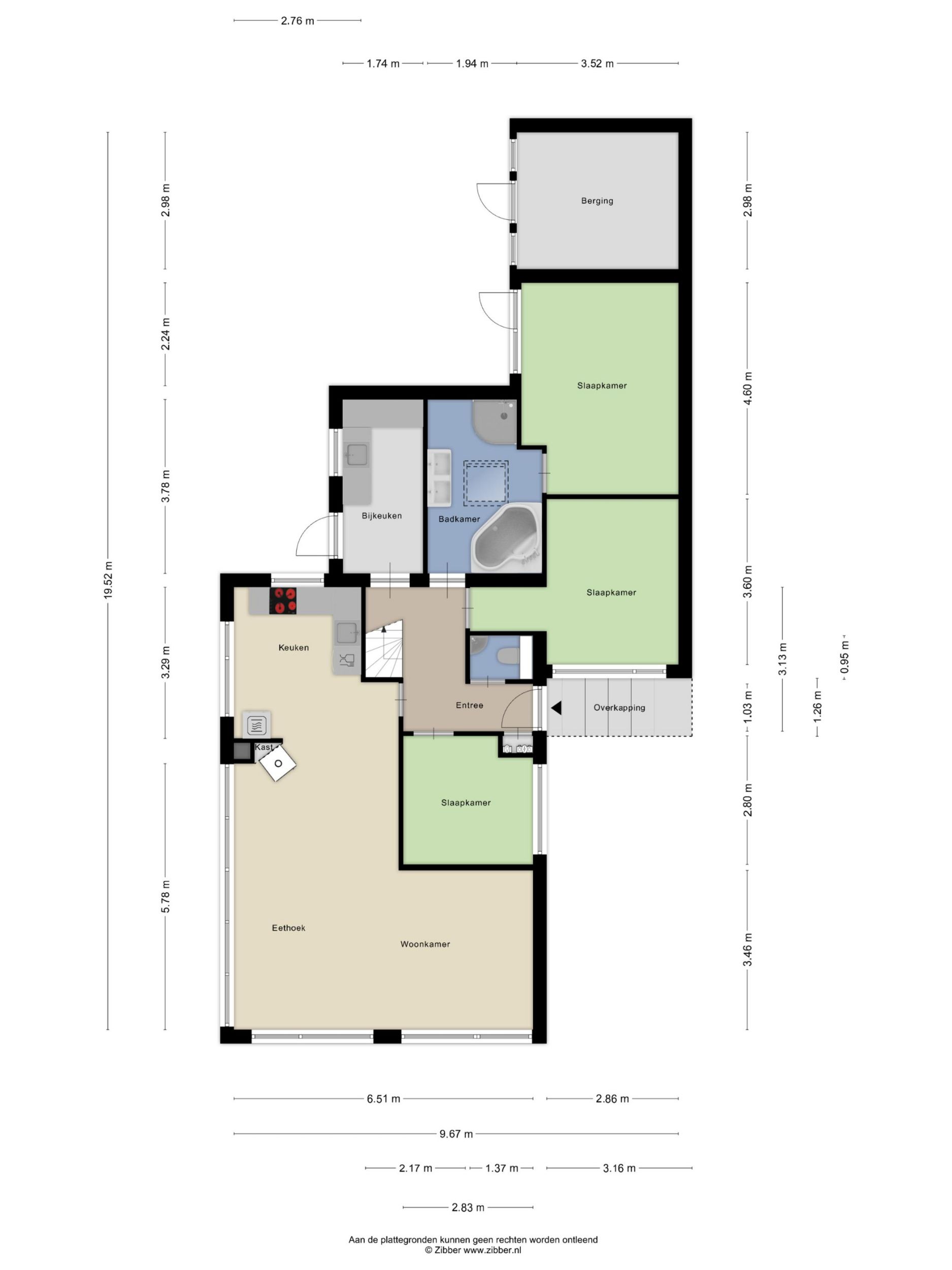
Indeling van de woning
Begane grond

Entree met meterkast en toilet. Vanuit de hal loop je door naar de ruime woonkamer met open keuken. Dankzij de vele grote raampartijen geniet je hier van een prettige hoeveelheid daglicht. In de wintermaanden creëer je eenvoudig sfeer en warmte met de houtkachel, al zijn er ook radiatoren aanwezig.

Aan de linkerzijde van de hal bevindt zich de kleinste slaapkamer. Aan de rechterzijde van de woning vind je de praktische bijkeuken met witgoedaansluiting en extra keukenblok. Aangrenzend liggen nog twee ruime slaapkamers, waaronder de masterbedroom met schuifpui naar de tuin – zo stap je in de zomer zó je achtertuin in!

De royale badkamer is uitgerust met een bubbelbad, een regendouchecabine en een dubbele wastafel.

Zolder
Via een vaste trap is de bergzolder bereikbaar. Hier bevindt zich ook de CV-ketel (Intergas HRE, 2023, huur).

Bijzonderheden:
- Levensloopbestendig wonen
- 3 slaapkamers
- Perceeloppervlakte 358 m²
- Royale en lichte woonkamer
- Houtkachel 
- CV-ketel Intergas HRE (2023, huur)
- Masterbedroom met schuifpui naar de tuin
- Ruime badkamer met bubbelbad en regendouche
- Bergzolder via vaste trap bereikbaar