Vragen? Bel 0517-856420
Woning verkopen?   Bel 0517-856420
Woning foto
Onder bod

Hanerak 9 in Harlingen

Specificaties

Aantal kamers : 5 kamers (4 slaapkamers)
Woonoppervlakte : 131 m²
Perceeloppervlakte : 142 m²
Bouwjaar : 2007
Energielabel : A
Prijs € 329.500 K.K.

Woningomschrijving

Goed onderhouden tussenwoning met vier slaapkamers in kindvriendelijke wijk Ludinga

Gelegen in de populaire en kindvriendelijke wijk Ludinga staat deze ruime en goed onderhouden tussenwoning met een woonoppervlakte van 131 m², vier slaapkamers, een stijlvolle PVC visgraatvloer en een energielabel A.

Indeling van de woning
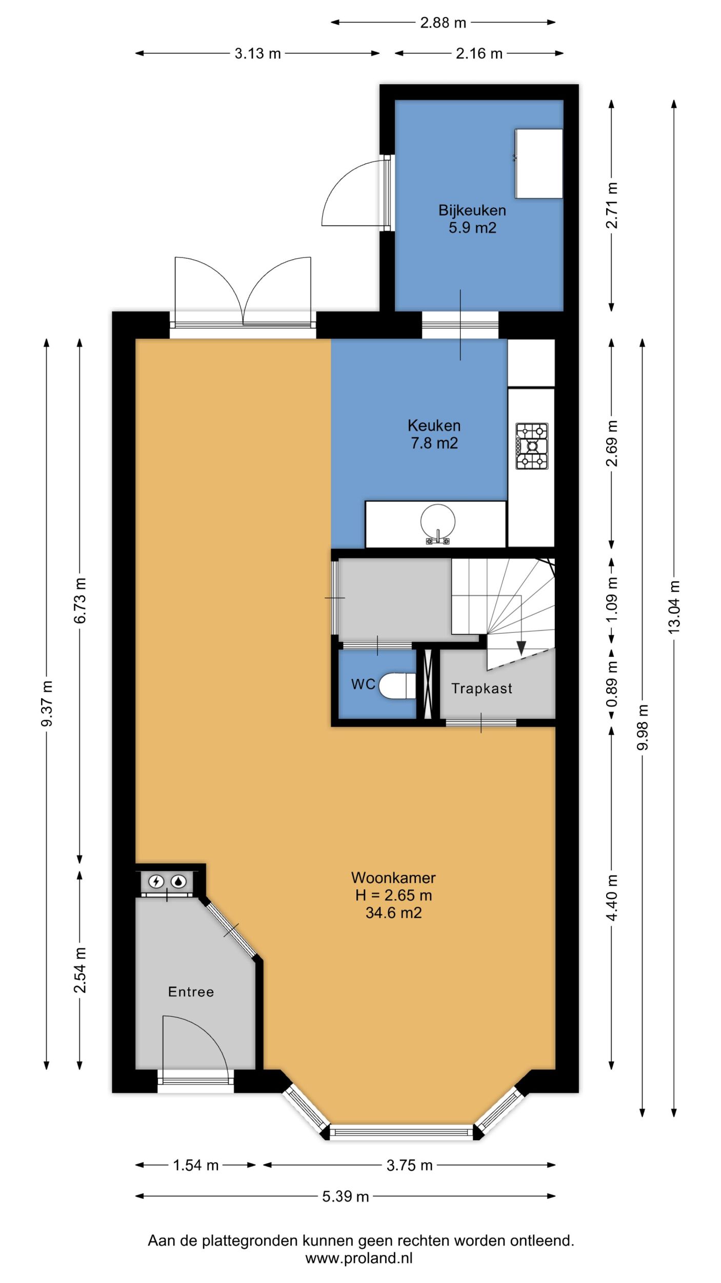
Begane grond

Entree met meterkast. De ruime woonkamer is voorzien van een sfeervolle erker aan de voorzijde, wat zorgt voor veel natuurlijk licht. De open hoekkeuken is uitgerust met een gaskookplaat, combi-magnetron, inbouw koel-vriescombinatie en vaatwasser. De gehele begane grond is strak afgewerkt met een moderne PVC visgraatvloer. Aansluitend is er een inpandige bijkeuken. Via de schuifpui heb je directe toegang tot de achtertuin.

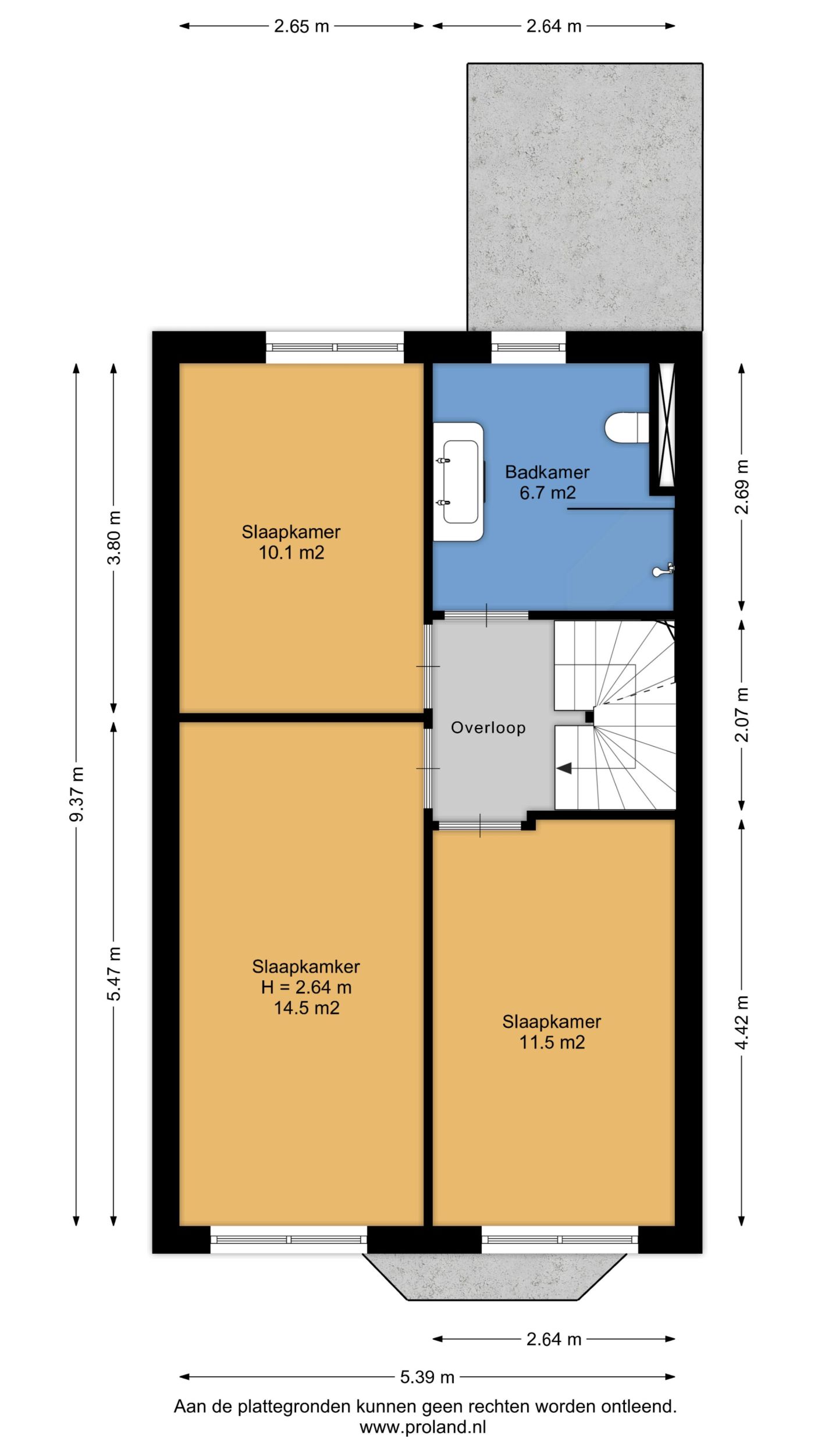
Eerste verdieping
Hier bevinden zich drie royale slaapkamers en de badkamer, die is voorzien van een inloopdouche, dubbele wastafel en een tweede toilet.

Tweede verdieping
Op de tweede verdieping bevindt zich de vierde slaapkamer. Deze ruimte is ruim genoeg om eventueel te splitsen, zodat een vijfde slaapkamer gerealiseerd kan worden. Tevens is hier de opstelplaats voor de CV-ketel (Intergas, 2007).

Bijzonderheden
- Woonoppervlakte: 131 m²
- Perceeloppervlakte: 142m²
- Energielabel A
- Vier (mogelijk vijf) slaapkamers
- PVC visgraatvloer op de begane grond
- Kindvriendelijke en rustige wijk
- Bijkeuken en schuifpui naar de tuin