Vragen? Bel 0517-856420
Woning verkopen?   Bel 0517-856420
Woning foto
Onder bod

Hoogaarshof 2 in Harlingen

Specificaties

Aantal kamers : 5 kamers (4 slaapkamers)
Woonoppervlakte : 112 m²
Perceeloppervlakte : 373 m²
Bouwjaar : 1978
Energielabel : C
Prijs € 385.000 k.k.

Woningomschrijving

Instapklare hoekwoning op royaal perceel!

Op zoek naar ruimte, comfort én een moderne afwerking? Deze instapklare hoekwoning is gelegen op een ruim perceel van maar liefst 373m² op het zuiden en beschikt over een eigen oprit voor meerdere auto’s, vier slaapkamers, een nieuwe keuken (2025), vloerverwarming, airco én een nieuwe CV-ketel (2025). Daarnaast beschikt de woning over 11 zonnepanelen.

Indeling van de woning
Begane grond

Entree met vernieuwde meterkast (2025) en toilet. De royale woonkamer is voorzien van vloerverwarming en een stijlvolle pvc-vloer in marmerlook. De woonkamer wordt in de zomer gekoeld met een airco-installatie, waardoor het binnen altijd aangenaam is. De luxe hoekkeuken (2025) is uitgerust met moderne inbouwapparatuur, waaronder een vaatwasser, inductiekookplaat, oven, koel-vriescombinatie én een inbouwkoffiezetapparaat. Via openslaande deuren stap je direct de ruime en zonnige tuin in, perfect om in alle privacy te genieten van het buitenleven. Achter de keuken bevindt zich de bijkeuken met witgoedaansluiting en toegang tot de ruime inpandige garage.

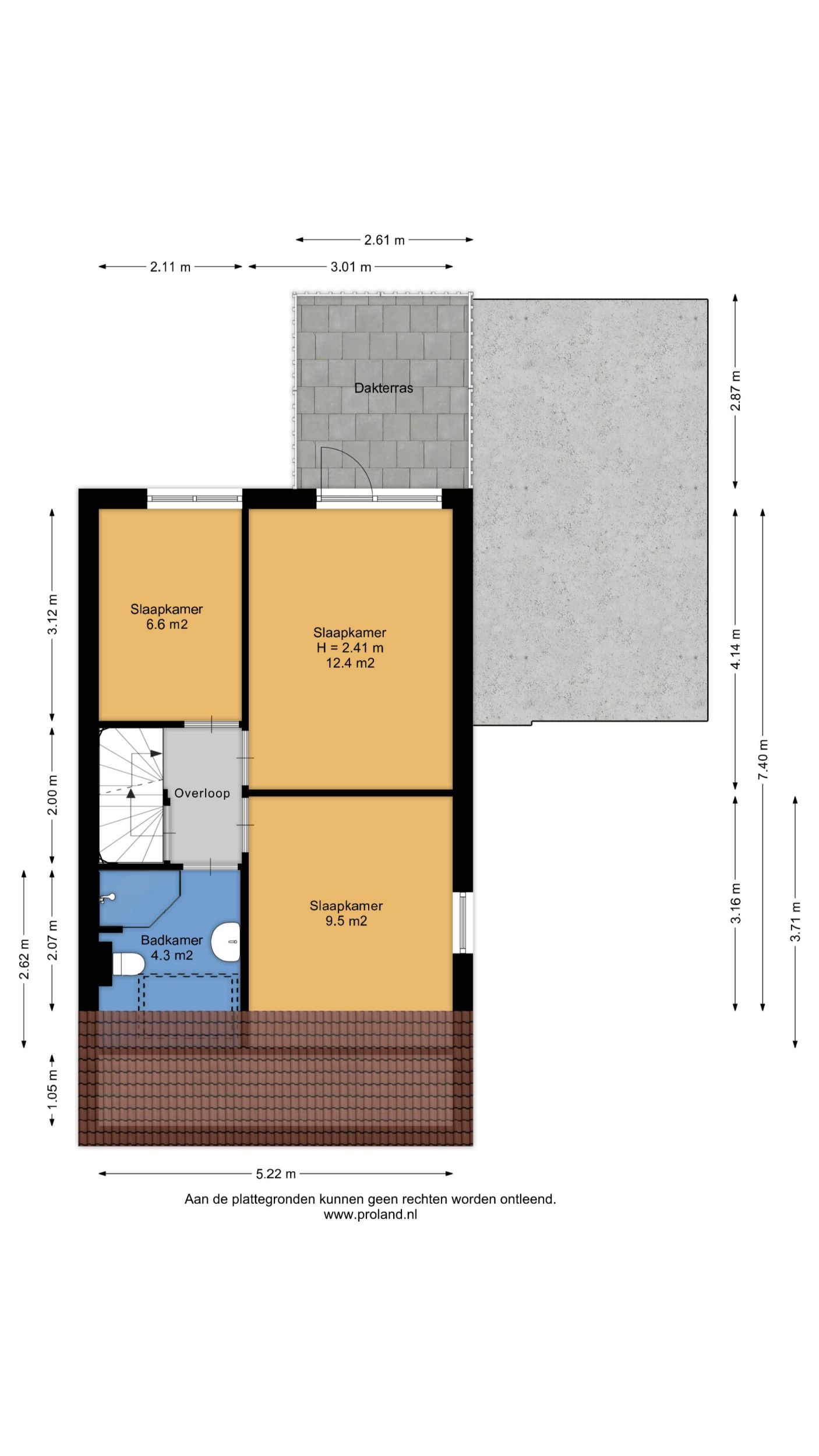
Eerste verdieping
Drie slaapkamers van goed formaat, waarvan één is voorzien van een airco. De badkamer beschikt over een inloopdouche, tweede toilet en wastafelmeubel.

Tweede verdieping
Overloop met extra bergruimte en de CV-ketel (2025). Hier bevindt zich tevens de vierde slaapkamer, ideaal als werkkamer, logeerkamer of tienerkamer.

Tuin
De fraai aangelegde tuin is gelegen op het zonnige zuiden en biedt volop privacy. Dankzij de speelse indeling kunnen er diverse zithoekjes worden gecreëerd om op elk moment van de dag te kunnen genieten van zon of schaduw.

Bijzonderheden
- Perceeloppervlakte: 373m²
- Vloerverwarming op de begane grond
- Nieuwe CV-ketel (2025)
- Nieuwe keuken (2025)
- Nieuwe meterkast (2025)
- Vloerisolatie aanwezig
- Vier slaapkamers
- Airco op begane grond en in één slaapkamer
- Ruime oprit voor meerdere auto's
- Inpandige garage
- 11 zonnepanelen

Benieuwd of deze woning jouw nieuwe thuis wordt? Neem contact met ons op voor een bezichtiging!