Vragen? Bel 0517-856420
Woning verkopen?   Bel 0517-856420
Woning foto
Verkocht

Turfstûke 23 in Oudehaske

Specificaties

Aantal kamers : 4 kamers (3 slaapkamers)
Woonoppervlakte : 88 m²
Perceeloppervlakte : 250 m²
Bouwjaar : 1990
Energielabel : C
Prijs € 349.500 k.k.

Woningomschrijving

Geschakelde woning in Oudehaske!

In het rustige dorp Oudehaske staat deze nette geschakelde woning, gelegen aan het water! De woning beschikt over drie slaapkamers, een vrijstaande garage, 9 zonnepanelen, verwarming via een luchtverwarmingssysteem en een energielabel C. Een heerlijke gezinswoning met fijne buitenruimte op een mooie locatie.

Indeling van de woning
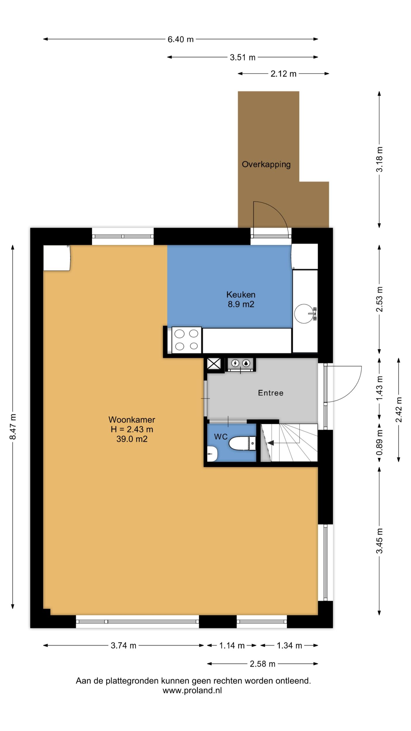
Begane grond

Entree met meterkast, toilet en trapopgang naar de eerste verdieping. De ruime woonkamer heeft grote raampartijen aan de voorzijde, wat zorgt voor veel lichtinval. Aan de achterzijde bevindt zich de open hoekkeuken, voorzien van een gasfornuis met oven en voldoende opbergruimte in de keukenkasten.

Eerste verdieping
Op de eerste verdieping bevinden zich drie slaapkamers, waarvan de slaapkamer aan de achterzijde zich uitstrekt over de volledige breedte van de woning. De badkamer is functioneel ingericht met een inloopdouche, wastafel en de aansluiting voor witgoed.

Buitenruimte
De zonnige tuin is gelegen op het zuidoosten en grenst direct aan het water (geen vaarwater). De walbeschoeiing is circa 10 jaar geleden vervangen en uitgevoerd in onderhoudsarm kunststof. Deze is in onderhoud van de gemeente.

Bijzonderheden:
- Perceeloppervlakte: 250 m²
- Vrijstaande garage met elektrische deur
- Gelegen aan het water (niet bevaarbaar)
- Onderhoudsvriendelijke kunststof walbeschoeiing (±2014)
- 9 zonnepanelen
- Verwarming middels luchtverwarmingssysteem
- Energielabel C