Vragen? Bel 0517-856420
Woning verkopen?   Bel 0517-856420
Woning foto
Beschikbaar

Voorstraat 4/4A in Harlingen

Specificaties

Aantal kamers : 5 kamers (3 slaapkamers)
Woonoppervlakte : 112 m²
Perceeloppervlakte : 67 m²
Bouwjaar : 1899
Energielabel : -
Prijs € 385.000 k.k.

Woningomschrijving

Karakteristiek woonpand met mogelijkheid tot winkel/studio in het historische hart van Harlingen!

In het bruisende centrum van Harlingen staat dit prachtige woonpand met een mogelijkheid tot winkel/studio op de begane grond, bestaande uit een ruim appartement van ca. 112 m² en een winkelruimte van ca. 37 m². Beide eenheden hebben een eigen entree, waardoor dit object ideaal is voor combinatie van wonen en werken óf als investering. De voorgevel is recent volledig gerenoveerd en verkeert in uitstekende staat. Het appartement beslaat drie woonlagen en beschikt over drie slaapkamers.

Indeling
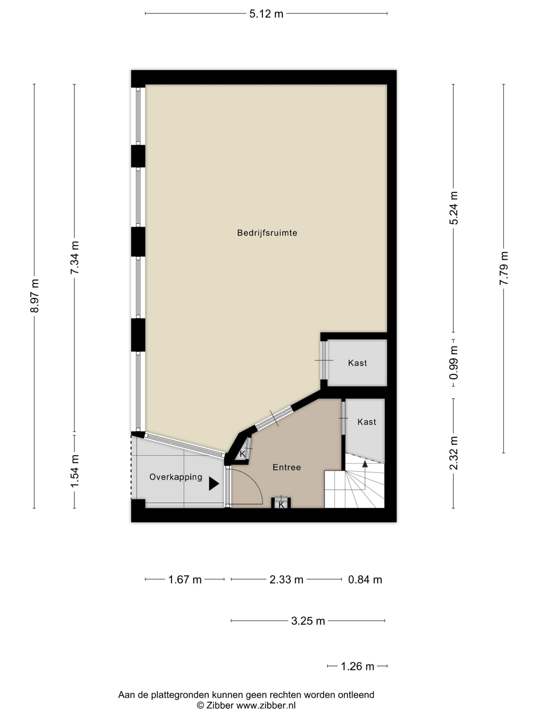
Begane grond

Via de linkerzijde is de winkelruimte toegankelijk. Deze beschikt over een eigen toilet en grote etalageramen over de volle breedte van het pand – perfect voor zichtbaarheid in de levendige binnenstad.
De rechteringang geeft toegang tot het appartement via een trap naar de eerste verdieping. Via de hal is de kelder onder het pand toegankelijk wat eventueel gebruikt kan worden als extra bergruimte.

Eerste verdieping
Hier bevindt zich een ruime woonkamer met veel natuurlijk lichtinval en een open hoekkeuken. De keuken is voorzien van een vaatwasser, inductiekookplaat, magnetron, oven en inbouwkoelkast. Op deze verdieping bevinden zich ook het toilet en de badkamer.

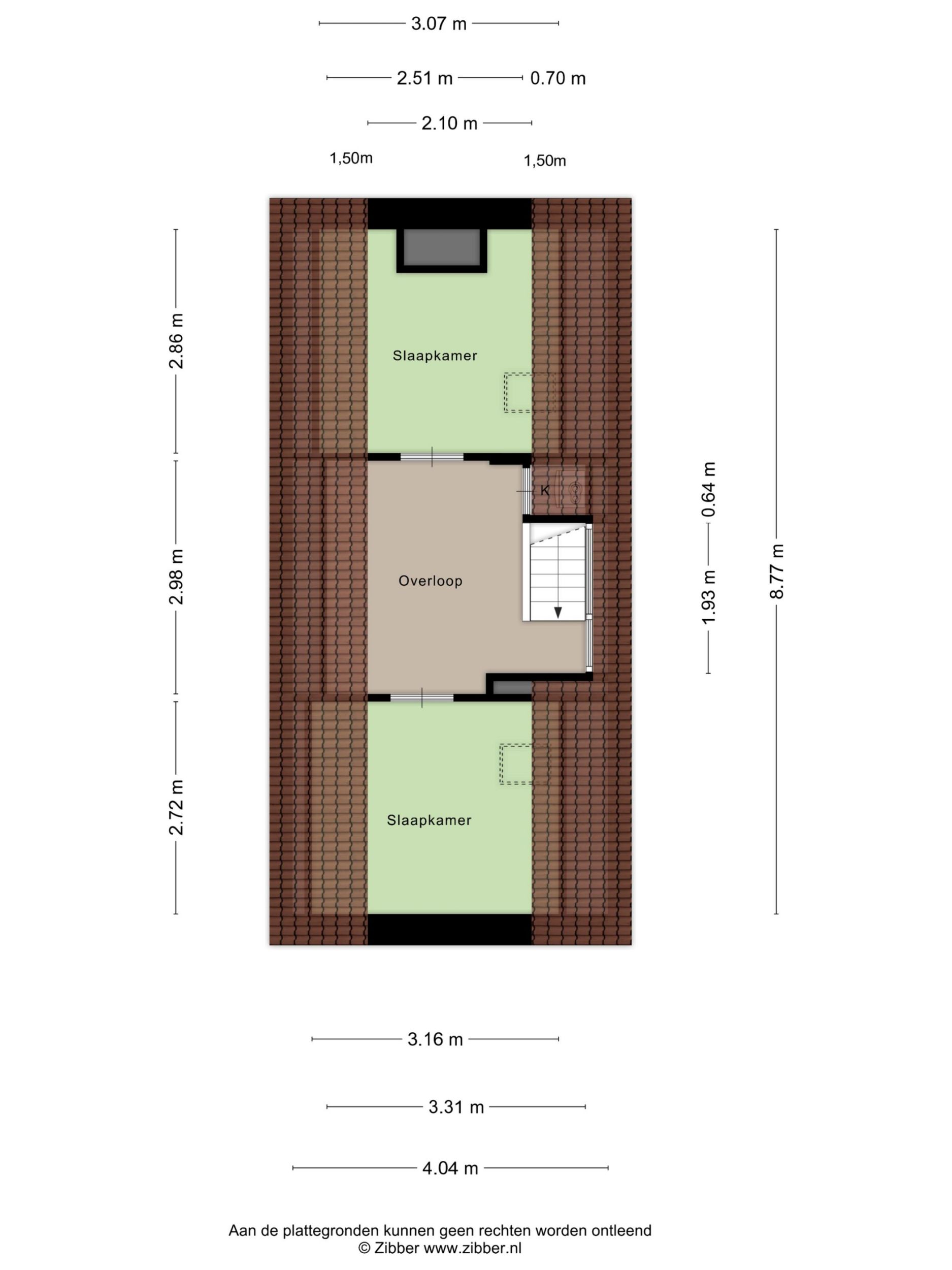
Tweede verdieping
Hier bevindt zich de derde slaapkamer, evenals een open ruimte die uitstekend kan dienen als thuiswerkplek, hobbykamer of extra bergruimte.

Derde verdieping
Op deze verdieping tref je twee slaapkamers, beide voorzien van authentieke balken die bijdragen aan het karakter van de woning.

Bijzonderheden:
- Totaal woonoppervlakte 112 m²
- Winkelruimte 37 m²
- Woon- en winkelgedeelte met eigen ingang
- Rijksmonument
- Volledig gerenoveerde voorgevel
- Gelegen in het historische stadscentrum van Harlingen
- Ideaal voor eigen gebruik of als beleggingsobject

Ben je op zoek naar een karakteristiek pand met uitstraling én mogelijkheden? Dan is dit je kans!

Bestemmingsplan: Binnenstad en veerhavengebied (06-06-2013)
Bestemming: De voor 'Centrum - 1' aangewezen gronden zijn bestemd voor; 
a. detailhandelsbedrijven; b. bedrijven die zijn genoemd in de bij deze regels als bijlage 1 opgenomen Staat van bedrijven onder de categorieën 1 en 2; c. wonen, met dien verstande dat: zie voor nadere details het bestemmingsplan. Voor de volledige omschrijving van het bestemmingsplan verwijzen wij naar  of de Gemeente Harlingen.